WOOD WINDOWS
Sublime’s wood windows are available in pine, oak, and meranti (a hardwood with a tight, straight grain, similar to mahogany). For an extremely durable and long lasting window, exterior aluminum cladding is typically used with our curved, classic edge profiles or sharp-cornered, contour edge profiles.
Many translucent wood finish options or RAL paint colors are available at no additional cost.
Thermal Performance
CAD Drawings
Wood Colors
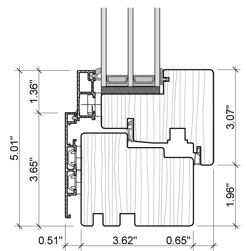
48mm triple-pane insulated glass with two low-e coatings
Aluminum cladding over 92mm wood window frame
Rear-ventilated assembly allows wood to breathe and aluminum cladding to expand during temperature fluctuations
Many wood species available, including pine, meranti, oak, and others
Three compression gaskets keep drafts and moisture outside
Great sound protection
Ideal for both residential and commercial applications
High thermal insulation for Passive House and Zero Net Energy construction
Thermal Performance
Wood Colors
CAD Drawings
48mm triple-pane insulated glass with two low-e coatings
Aluminum cladding over 92mm wood window frame
Rear-ventilated assembly allows wood to breathe and aluminum cladding to expand during temperature fluctuations
Many wood species available, including pine, meranti, oak, and others
Three compression gaskets keep drafts and moisture outside
Great sound protection
Ideal for both residential and commercial applications
High thermal insulation for Passive House and Zero Net Energy construction
Thermal Performance
CAD Drawings
Wood Colors
48mm triple-pane insulated glass with two low-e coatings
92mm wood window frame available in many wood species, including pine, meranti, oak, and others
Rear-ventilated aluminum drip edges promote proper water drainage and allow wood to breathe
Two compression gaskets keep drafts and moisture outside
Great sound protection
Ideal for both residential and commercial applications
High thermal insulation for Passive House and Zero Net Energy construction
 
                         
            
              
            
            
          
               
            
              
            
            
          
               
            
              
            
            
          
               
            
              
            
            
          
               
            
              
            
            
          
               
            
              
            
            
          
               
            
              
            
            
          
             
            
              
            
            
          
             
            
              
            
            
          
             
            
              
            
            
          
             
            
              
            
            
          
             
            
              
            
            
          
               
            
              
            
            
          
               
            
              
            
            
          
               
            
              
            
            
          
               
            
              
            
            
          
               
            
              
            
            
          
               
            
              
            
            
          
             
            
              
            
            
          
             
            
              
            
            
          
             
            
              
            
            
          
             
            
              
            
            
          
             
            
              
            
            
          
               
            
              
            
            
          
               
            
              
            
            
          
               
            
              
            
            
          
               
            
              
            
            
          
               
            
              
            
            
          
             
            
              
            
            
          
             
            
              
            
            
          
             
            
              
            
            
          
            